PROJECT 1
In this project I have created a construction document set for a two-story building- A café and a book store "THE NOOK" 

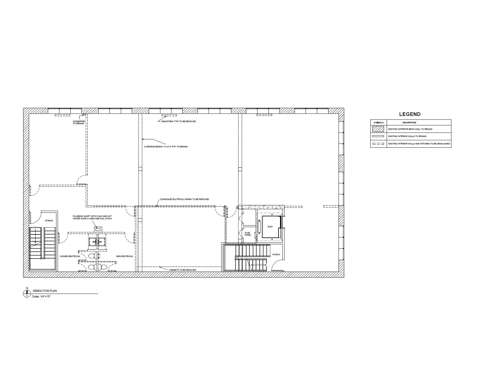
Demolition Sheet

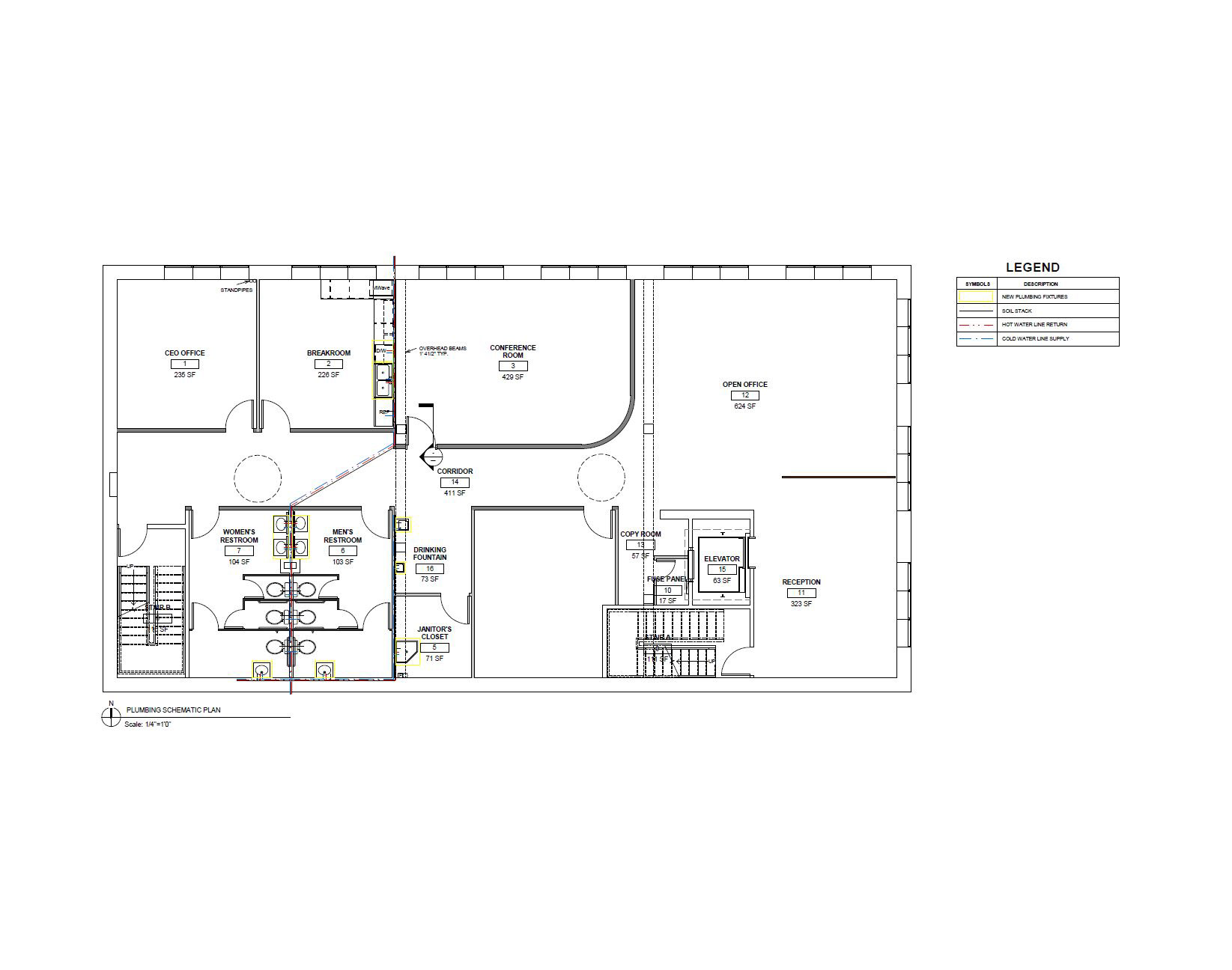
Construction Sheet

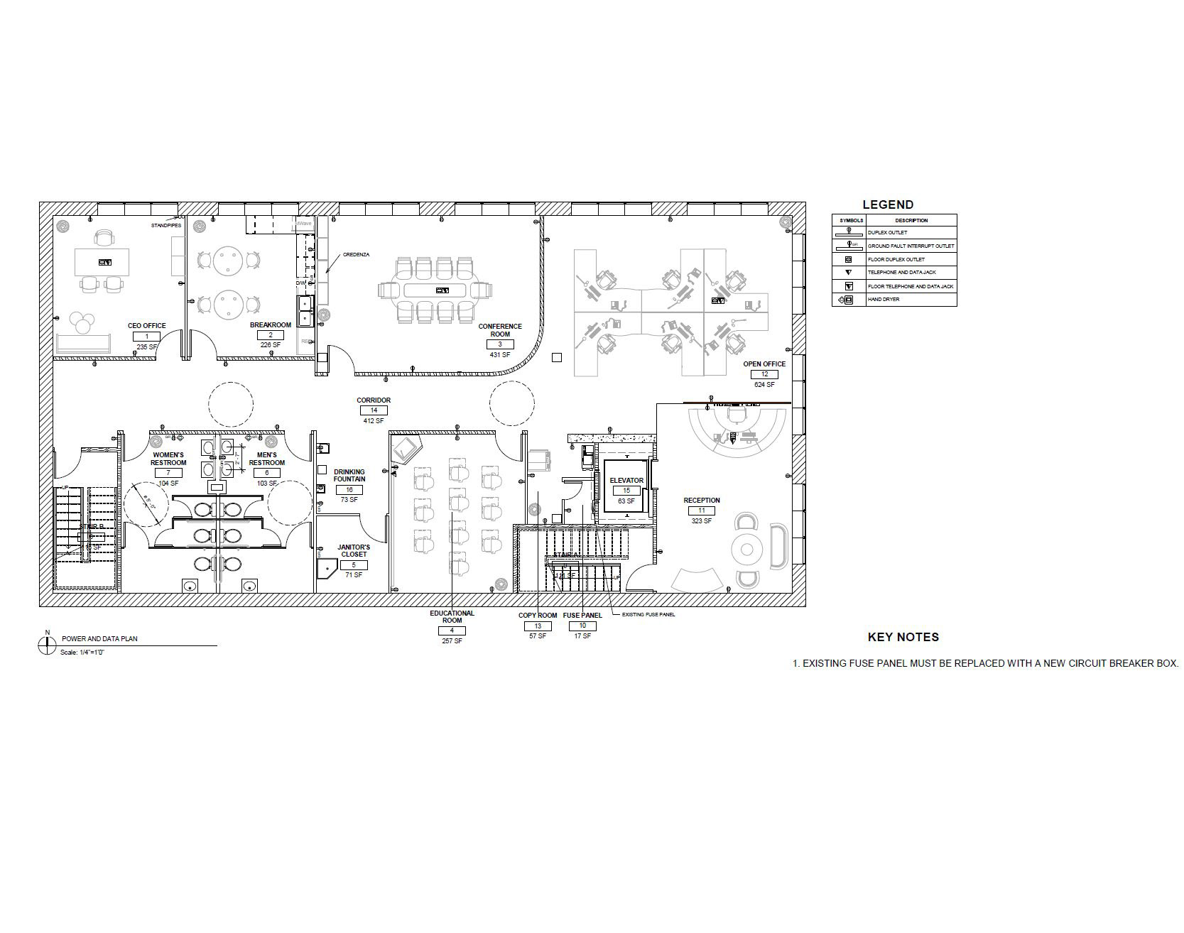
Power and Communication Sheet

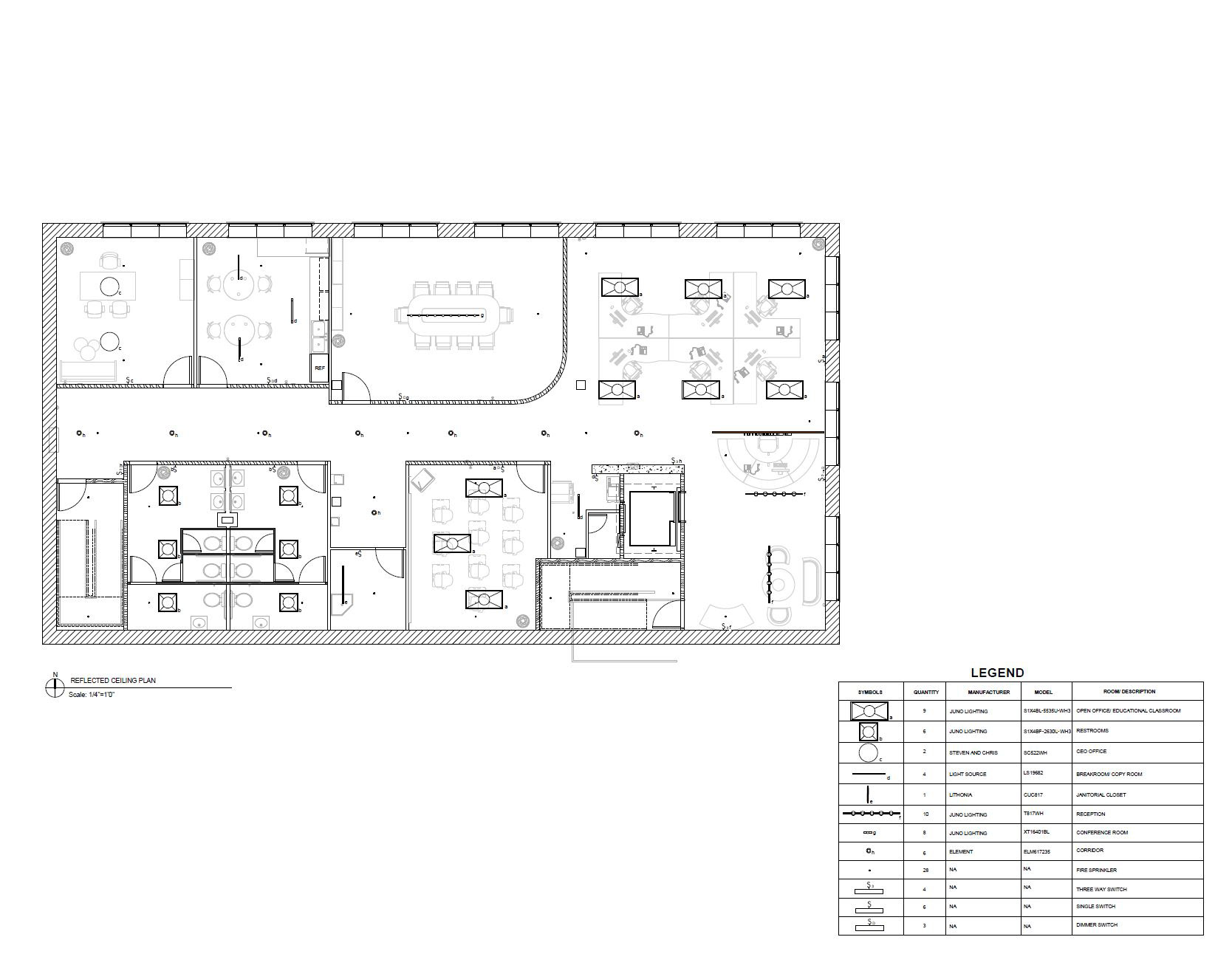
Reflected Ceiling Sheet

Finish Sheet

Furniture Sheet

Elevations

Details

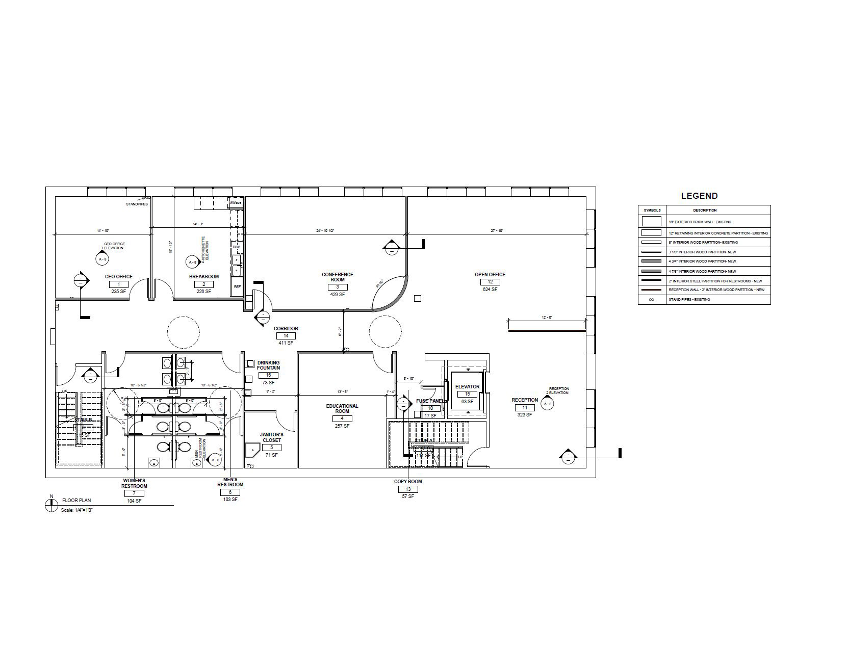
PROJECT 2
This is a renovation project for an office space named "INNOTEK". The analysis is based on the building structure and it's type of construction, based on which the construction document set is developed for the given office space.